Trilocale in Ottime Condizioni.

Grazie, Ancona
106.000 €

Informazioni Principali

Codice V000099 Categoria Tipo , Riscaldamento Autonomo

Agenzia Immobiliare

  • Agenzia: Pianeta Casa Ancona

Descrizione

  • Descrizione:

    Si propone in vendita nel quartiere Grazie, un appartamento trilocale caratterizzato da una distribuzione degli spazi ottimale e da un ottimo stato conservativo interno.

    L'unità abitativa si apre su una zona giorno accogliente e funzionale, così composta:
    Soggiorno con Cucinino: Un ambiente living luminoso e ben organizzato.
    Zona Notte: Un disimpegno conduce a due ampie camere matrimoniali, che si distinguono per la generosità delle metrature e la facilità di arredo.
    Servizi: Un bagno finestrato, mantenuto in ottime condizioni.

    Il valore aggiunto della proprietà è rappresentato dall'uso di una porzione di giardino condominiale, recintata, uno spazio verde curato e fruibile, ideale per chi desidera vivere in un contesto che offra sfogo esterno.

    L'appartamento è situato in una delle zone più servite di Ancona, a brevissima distanza da tutti i principali poli di interesse (scuole, servizi sanitari e attività commerciali). Gli interni non necessitano di interventi di ristrutturazione, rendendo l'immobile immediatamente abitabile.

    Ideale per chi ricerca una soluzione abitativa solida e pronta all'uso, da valutare anche ad uso investimento, data la vicinanza del polo universitario, in un quartiere tranquillo ma perfettamente collegato.

    Per ricevere ulteriori dettagli, consultare la documentazione tecnica o fissare un sopralluogo, non esitate a contattarci.

Altre Informazioni

  • Lati Liberi: 3
  • Tipo Riscaldamento: Caldaia
  • Tipo Impianto: Radiatori
  • Balconi: No
  • Terrazzi: No
  • Tipo Soggiorno: Soggiorno
  • Tipo Cucina: A Vista
  • Acqua Calda: Autonoma
  • Infissi: PVC Doppio Vetro
  • Pavimento Giorno: Gres Porcellanato
  • Pavimento Notte: Gres Porcellanato
  • Pavimento Cucina: Gres Porcellanato
  • Pavimento Bagno: Gres Porcellanato
  • Totale Piani: Tre
  • Stato Immobile: Ristrutturato
  • Giardino: Comune
  • Grado: Medio
  • Fonte Energetica: Metano

Mappa

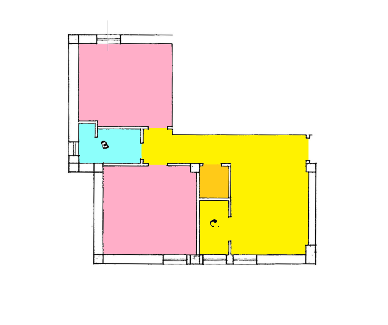
Planimetrie

  • Planimetrie :

Chiedi info su questo immobile

Telefono
Facendo clic sul pulsante «RICHIEDI INFO» accetti Termini di utilizzo e Politica sulla riservatezza

Condividi questo property

Copia

O condividi con

Reset password

Inserisci il tuo indirizzo email e ti invieremo un link per cambiare la tua password.

Call Now Button