Ancona – Appartamento in vendita a Torrette, vicino Ospedale

via Tenna 10, Torrette, Ancona
223.000 €

Informazioni Principali

Codice V000918 Categoria , Tipo , Riscaldamento Conta Calorie

Agenzia Immobiliare

  • Agenzia: Soluzione Casa

Descrizione

  • Descrizione:

    Sei alla ricerca di un immobile in ottime condizioni, situato in una zona strategica e già pronto per generare una rendita? Questo appartamento a Torrette, Ancona, è la soluzione ideale per te.

    Caratteristiche principali:
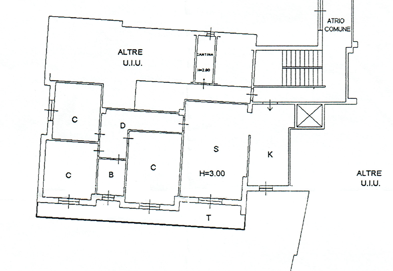
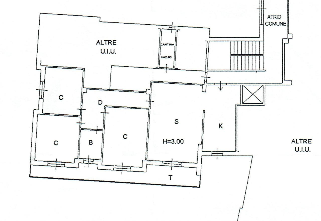
    Situato in una posizione privilegiata, a due passi dall'Ospedale Regionale, l'appartamento si presenta in ottime condizioni e vanta un'ottima disposizione degli spazi interni. L'ingresso conduce a un ampio e luminoso salone con cucina a vista, un ambiente perfetto per momenti di relax e convivialità. Superficie Mq notte è composta da tre camere da letto accoglienti, ideali per una famiglia o per l'affitto a studenti. Completa la proprietà un bagno funzionale, un balcone e una comoda cantina al piano terra, perfetta per riporre oggetti o biciclette.

    L'immobile viene venduto parzialmente ammobiliato, con la cucina inclusa, un dettaglio che ti permetterà di risparmiare tempo e denaro.

    Un'opportunità di investimento unica
    L'appartamento è attualmente locato con contratti per studenti, garantendo fin da subito un reddito costante. La vicinanza all'Ospedale e all'Università lo rende particolarmente appetibile per il mercato degli affitti, assicurandoti un'elevata richiesta e una rendita sicura nel tempo.

    Non perdere questa occasione. Contattaci per maggiori informazioni e per fissare una visita.

Altre Informazioni

  • Lati Liberi: 2
  • Tipo Riscaldamento: Caldaia
  • Tipo Impianto: Radiatori
  • Serramenti: Ottimo
  • Accesso Disabili: Nessuna Barriera
  • Balconi: Uno
  • Terrazzi: No
  • Tipo Soggiorno: Soggiorno
  • Tipo Cucina: Abitabile
  • Acqua Calda: Autonoma
  • Infissi: Metallo Doppio Vetro
  • Pavimento Giorno: Marmo
  • Pavimento Notte: Marmo
  • Pavimento Cucina: Marmo
  • Pavimento Bagno: Ceramica
  • Cantina Solaio: Cantina
  • Posizione: Periferia
  • Arredi: Solo Cucina
  • Persiana: Tapparella PVC
  • Totale Piani: Cinque
  • Stato Immobile: Buono
  • Giardino: No
  • Grado: Signorile
  • Fonte Energetica: Metano

Mappa

Planimetrie

Chiedi info su questo immobile

Telefono
Facendo clic sul pulsante «RICHIEDI INFO» accetti Termini di utilizzo e Politica sulla riservatezza

Condividi questo property

Copia

O condividi con

Reset password

Inserisci il tuo indirizzo email e ti invieremo un link per cambiare la tua password.

Call Now Button